The Property
Land Plot with Approved Project – São Brás de Alportel.
Just a few minutes from the magnificent village of S. Brás, we find this plot with 504.65m2 inserted in a development of 11 plots with a communal pool.
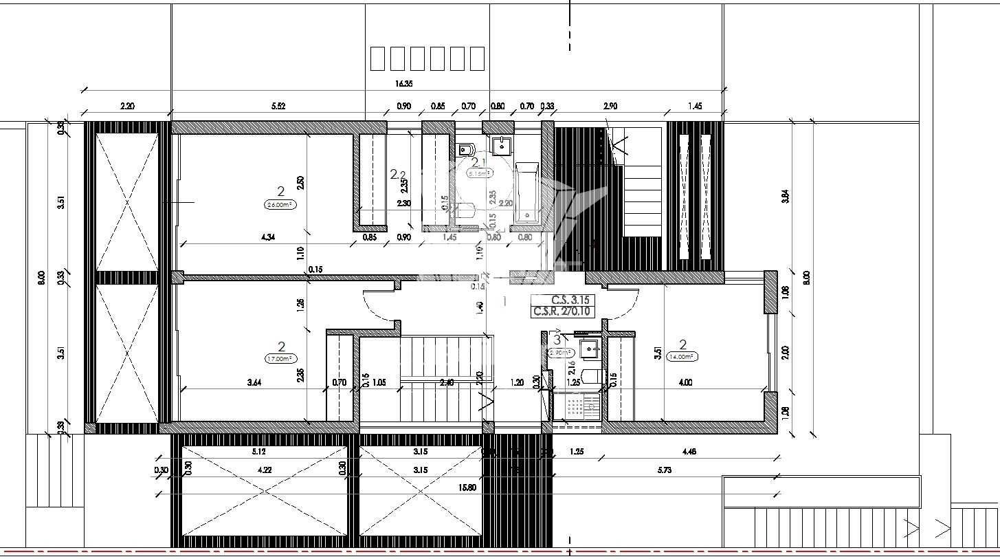
The project includes a villa, which will have an A energy rating, consisting of a basement where you can find a garage for 2 cars, storage rooms, laundry room, storage, and technical area, ground floor consisting of a spacious open-plan kitchen for a large common room, a guest bathroom with a shower base, a bedroom with a wardrobe, and a terrace.
On the first floor, we find a guest bathroom with a shower base, two bedrooms with wardrobes, and a large suite with a closet and a full bathroom. On this floor, we will also find a terrace that will give us access to the roof where you can enjoy an unobstructed view while delighting in our Algarve sun or contemplating our wonderful sunset.
Contact us and schedule your visit now.
Town & District: São Brás de Alportel, Faro – Zone and area São Brás de Alportel, São Brás de Alportel
Overview
- PLOT
- 0
- 1900 m2
- 504,65 m2
- 1
- RCCI-9276-4467
The Location
- Address: São Brás de Alportel, Faro
- Area | Locality: São Brás de Alportel, Faro
- Region: FARO
- Country: PORTUGAL
Energy Rating
- Energy Rating: A
- EPC Current Rating: A
- EPC Potential Rating: SCE261073524
- A+
- | Energy Rating AA
- B
- C
- D
- E
- F
- G
- H
Mortgage Calculator
- Deposit
- Loan Amount
- Monthly Mortgage Payment
- Property Tax
- Home Insurance
- PMI
- Monthly HOA Fees
Your Sales Agent
VIEW LISTINGSimilar Listings
Plot Of Land in Faro
Vila Real de Santo António, Faro, FARO, PORTUGAL- Bed: 0
- 1900 m2
- 1105 m2
- PLOT



































